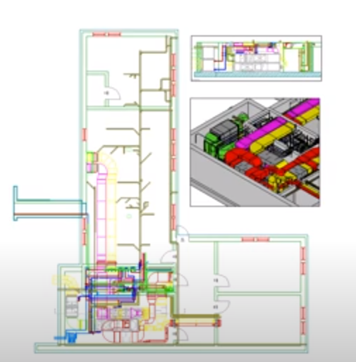
les bases de Trimble Nova

Dans cette vidéo Trimble MEP vous présente l'environnement et les fonctionnalités de base de Trimble Nova.

0
0
0

Mots clés de l'Article technique : les bases de Trimble Nova

Autres documents dans la catégorie Plancal Nova MEP - tutoriel de la société Trimble Construction